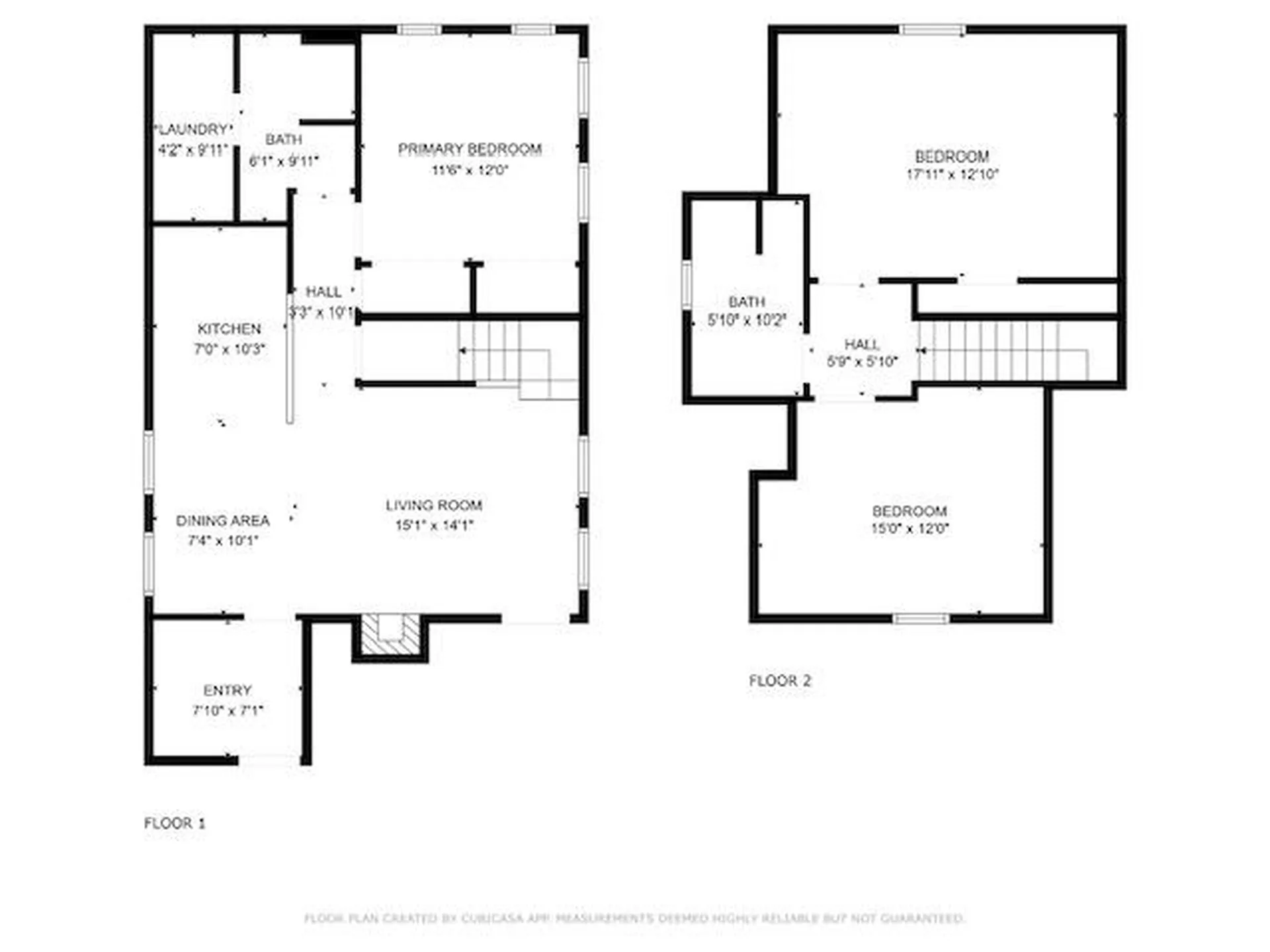
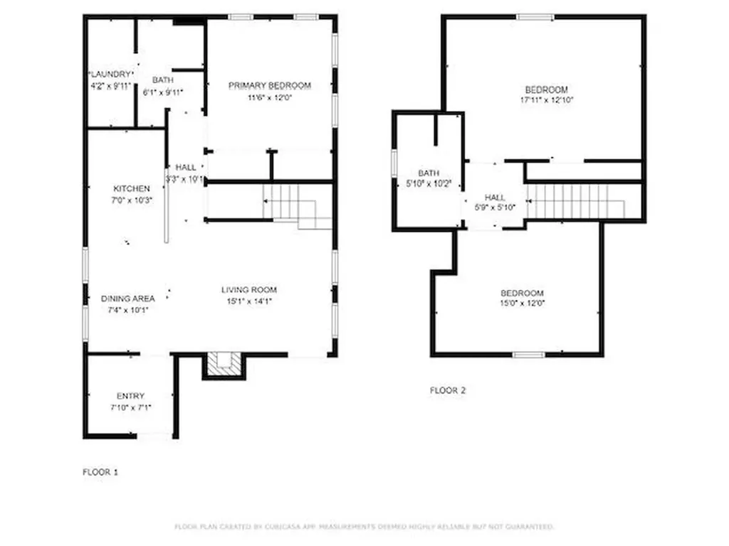
This charming Cape-style home offers three bedrooms and two full baths across the first two floors, featuring bamboo hardwood floors throughout and abundant natural light. Upstairs bedrooms have built in dressers. The living room boasts a cozy gas fireplace and flows seamlessly into the open-concept kitchen and dining area. A MAJOR highlight is the deeded lake rights to the picturesque Lake Raponda in Wilmington. Just a short stroll along the community trail through the woods or drive to the private parking lot for 4 cars that leads you to a private association beach with a dock and kayak racks-ideal for swimming, paddling, boating and enjoying peaceful lakeside moments or you can park along Lake Raponda Rd by the public beach access. Outdoor enthusiasts will also love the easy access to the nearby VAST snowmobile trails. Conveniently located only minutes from Mount Snow for skiing and year-round recreation, and just a short drive to the shops and restaurants of downtown Wilmington. Whether you're looking for a full-time residence or a weekend escape, this property offers a perfect blend of lake and mountain living.

Listing Tools

Property Details of 156 Mountain View Road

Property Details

Interior Features

Exterior Features

Utilities and Appliances

Community

Other Details

Map Location

Driving Directions

Broker Reciprocity 

Copyright 2026 PrimeMLS, Inc. All rights reserved. This information is deemed reliable, but not guaranteed. The data relating to real estate displayed on this display comes in part from the IDX Program of PrimeMLS. The information being provided is for consumers’ personal, non-commercial use and may not be used for any purpose other than to identify prospective properties consumers may be interested in purchasing. Data last updated May 19, 2026 2:24 PM EDT

 

Hi there! How can we help you?

Contact us using the form below or give us a call.

Send Us A Message:

I agree to receive marketing and customer service calls and text messages from Brattleboro Area Realty. To opt out, you can reply 'stop' at any time or click the unsubscribe link in the emails. Consent is not a condition of purchase. Msg/data rates may apply. Msg frequency varies. Privacy Policy.

Do not fill in this field:

This site is protected by reCAPTCHA and the Google Privacy Policy and Terms of Service apply.

Hi there! How can we help you?

Contact us using the form below or give us a call.

Send Us A Message:

Do not fill in this field:

This site is protected by reCAPTCHA and the Google Privacy Policy and Terms of Service apply.

Hi there! How can we help you?

Contact us using the form below or give us a call.

Send Us A Message:

Do not fill in this field:

This site is protected by reCAPTCHA and the Google Privacy Policy and Terms of Service apply.

Do not fill in this field:

This site is protected by reCAPTCHA and the Google Privacy Policy and Terms of Service apply.

Do not fill in this field:

This site is protected by reCAPTCHA and the Google Privacy Policy and Terms of Service apply.

Do not fill in this field:

This site is protected by reCAPTCHA and the Google Privacy Policy and Terms of Service apply.

$

Do not fill in this field:

This site is protected by reCAPTCHA and the Google Privacy Policy and Terms of Service apply.